Villa à CALPE
1.785.000 €
Ref:
CA.H-478
Propriété:
Villa
Ville
CALPE (Alicante)
Quartier résidentiel:
Gran Sol
Prix
1.785.000 € 
Chambres:
4
Salle de bain:
4
Piscine:
Oui
M² Propriété:
290 m²
M² Terrain:
1.178 m²
Parking:
Garage
Terrasse extérieure:
Oui
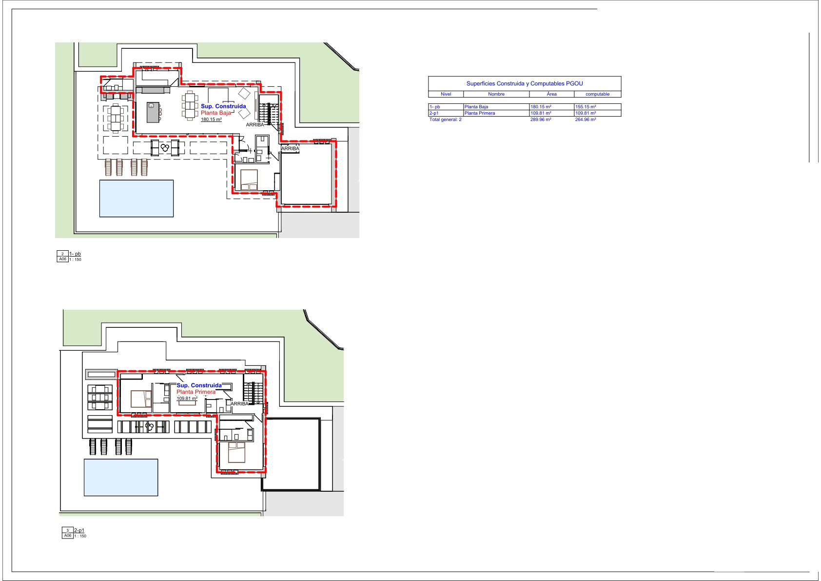
Villa moderne et luxueuse à Gran Sol, Calpe, avec vue sur la mer Cette villa à Calpe est un projet situé dans le quartier calme de Gran Sol et offre une combinaison d'architecture moderne, d'agencement fonctionnel et de vue sur la mer. Description La villa est répartie sur deux étages. Le rez-de-chaussée comprend un salon et une salle à manger spacieux avec une cuisine ouverte. La cuisine est équipée d'un îlot central qui peut également servir de bar pour le petit-déjeuner. À côté de la cuisine se trouve une buanderie pratique avec un espace de rangement et un lave-linge. À cet étage se trouvent également une chambre avec salle de bains attenante et des toilettes pour invités. De grandes baies vitrées coulissantes apportent beaucoup de lumière naturelle et donnent un accès direct à la terrasse. Un escalier intérieur mène à l'étage supérieur. Vous y trouverez trois chambres spacieuses, chacune avec sa propre salle de bains attenante. Deux chambres disposent d'un dressing et la suite parentale offre un accès direct à une terrasse sur le toit. À l'extérieur, vous trouverez une grande terrasse couverte, une terrasse ensoleillée autour de la piscine et des toilettes extérieures supplémentaires. La villa dispose également d'un garage pour deux voitures. La villa est équipée du chauffage au sol, de la climatisation et du double vitrage. Particularités Deux étages avec quatre chambres et quatre salles de bains Cuisine ouverte avec îlot central Arrière-cuisine pour le rangement et la buanderiePiscine de 32 m² avec terrasse ensoleilléeGarage pour deux voituresChauffage au sol et climatisationPourquoi visiter cette villa Aménagement moderne et très lumineuxVue sur la mer depuis plusieurs terrassesAménagement pratique avec des chambres spacieusesConstruction et finitions de haute qualitéCette villa à Calpe est une maison au design épuré située dans un quartier calme près de Calpe. Vous souhaitez en savoir plus sur ce projet ? Prenez rendez-vous avec l'un de nos collaborateurs. Le prix exposé ne comprend pas les taxes et les frais d'achat / L'offre est sujette à des erreurs, des changements de prix, la disponibilité, l'omission et / ou le retrait du marché sans préavis / Le mobilier et le contenu selon accord personnalisé et non selon les photos de présentation

Very efficient

Energy consumption (KW h / m2 year)
Emissions (Kg CO2 / m2 year)
A
B
C
D
E
F
G

Not efficient

Valid until:

Pending

AVIS: Les informations contenues dans cette annonce a peut-être changé par le propriétaire, si nous ne sommes pas responsable de l'exactitude des données, s'il vous plaît contactez-nous pour les détails exacts de cette annonce.